Palmerston Road, Buckhurst Hill
£390,000
Contact Details
Property Features
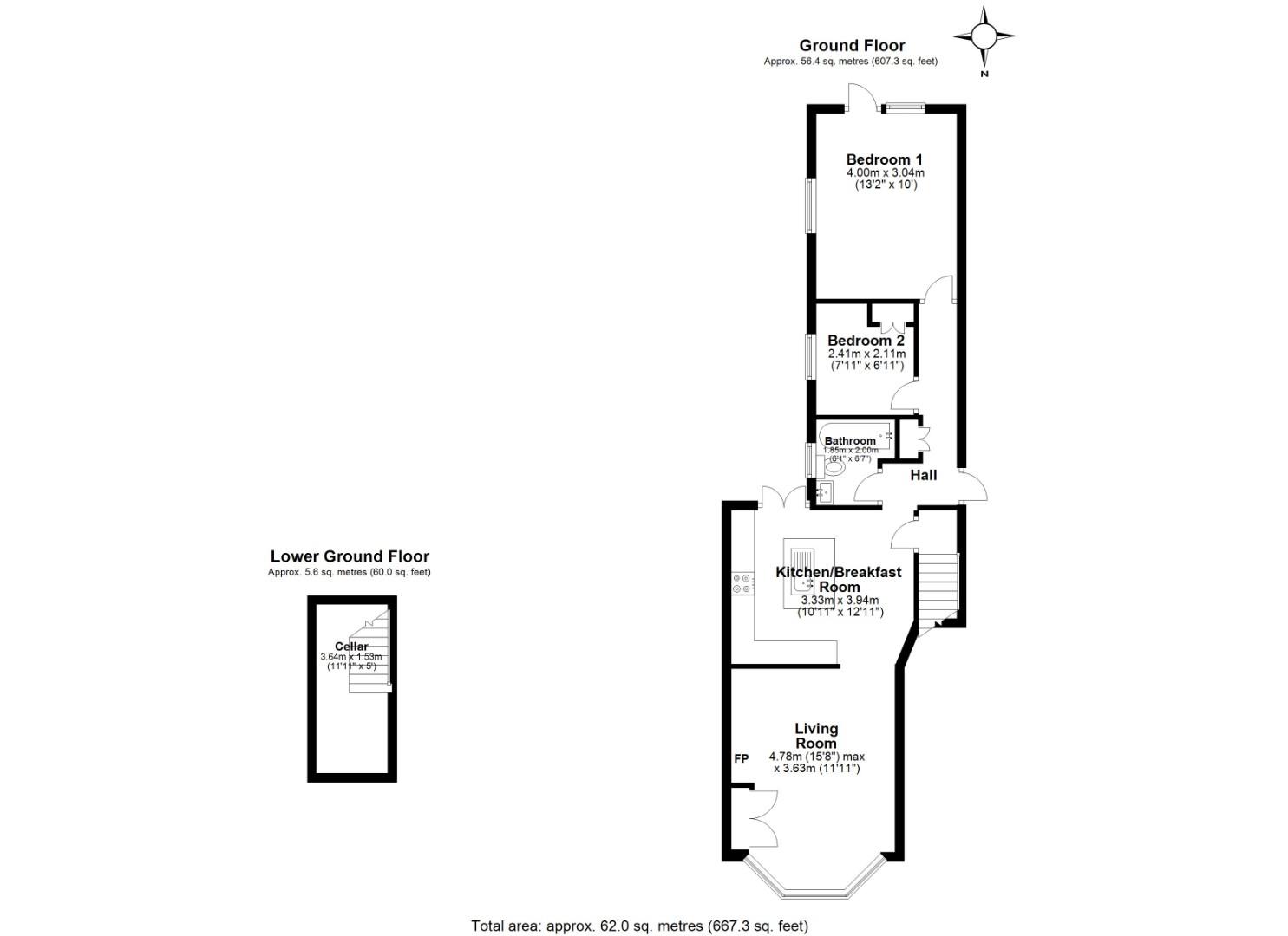
Double Glazed | Ground Floor | New modern kitchen | South facing garden | Wooden Flooring | EPC: D | Basement | No onward chain | Close to the Central line station | Permit parkingProperty Summary
Palmerston Road offers a perfect blend of character and modern living. Built in 1900, the property exudes a sense of history while providing a comfortable and inviting atmosphere. Spanning an impressive 732 square feet, this flat features a well-proportioned reception room, ideal for both relaxation and entertaining guests.
The accommodation comprises two spacious bedrooms, providing ample space for rest and privacy. The layout is thoughtfully designed to maximise natural light, creating a warm and welcoming environment throughout.
Situated in a desirable location, residents will benefit from the convenience of local amenities, including shops, cafes, and parks, all within easy reach. Buckhurst Hill is known for its excellent transport links, making it an ideal choice for commuters seeking access to central London.
This property presents a wonderful opportunity for first-time buyers or those looking to downsize, offering a charming home in a sought-after area. With its blend of period features and modern comforts, this flat is sure to appeal to a variety of buyers. Do not miss the chance to make this lovely property your own.
Agent note: This property does not have parking, however parking permits for surrounding roads are available via Epping Forest council.
The accommodation comprises two spacious bedrooms, providing ample space for rest and privacy. The layout is thoughtfully designed to maximise natural light, creating a warm and welcoming environment throughout.
Situated in a desirable location, residents will benefit from the convenience of local amenities, including shops, cafes, and parks, all within easy reach. Buckhurst Hill is known for its excellent transport links, making it an ideal choice for commuters seeking access to central London.
This property presents a wonderful opportunity for first-time buyers or those looking to downsize, offering a charming home in a sought-after area. With its blend of period features and modern comforts, this flat is sure to appeal to a variety of buyers. Do not miss the chance to make this lovely property your own.
Agent note: This property does not have parking, however parking permits for surrounding roads are available via Epping Forest council.




























